Alto de Vila
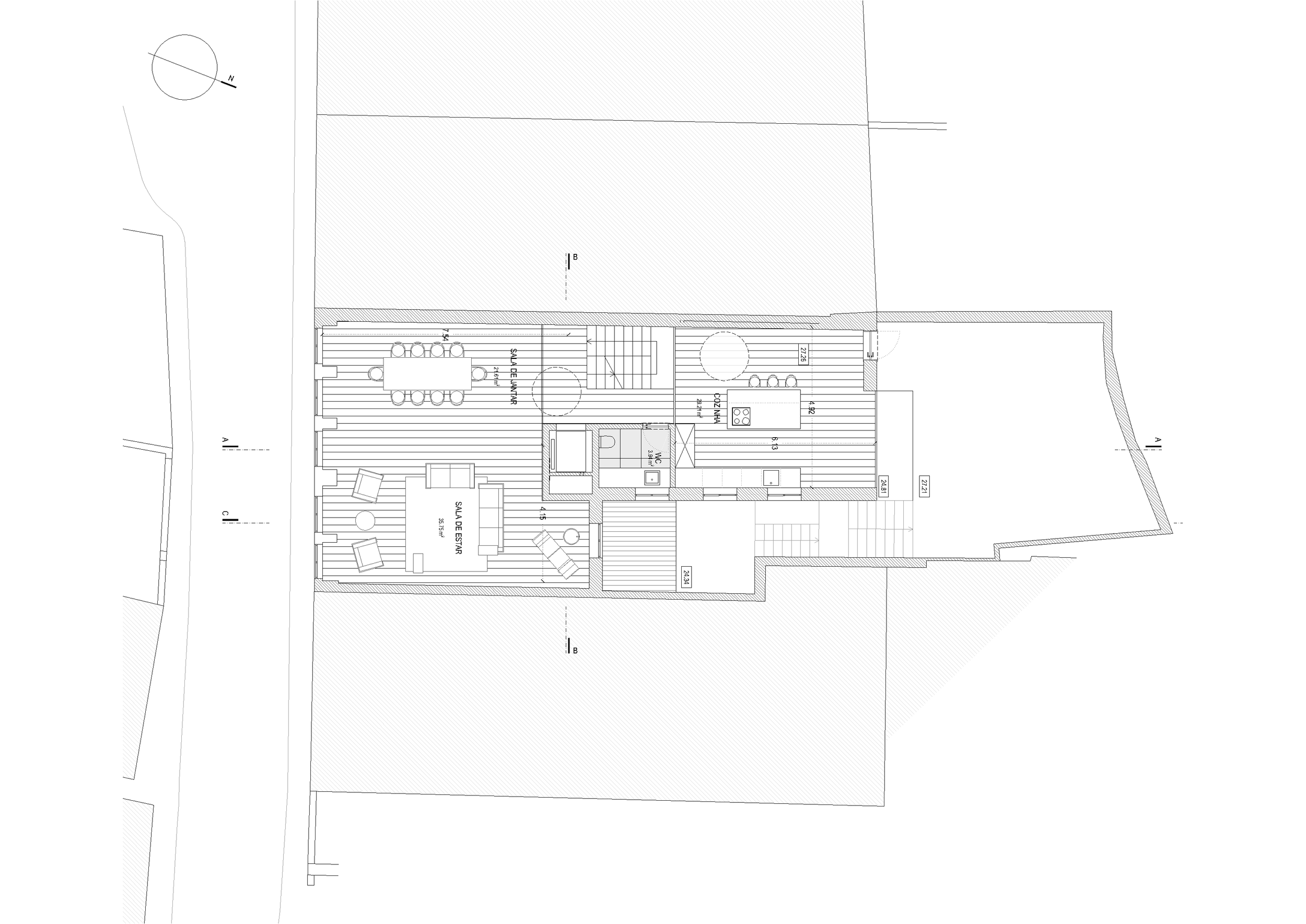
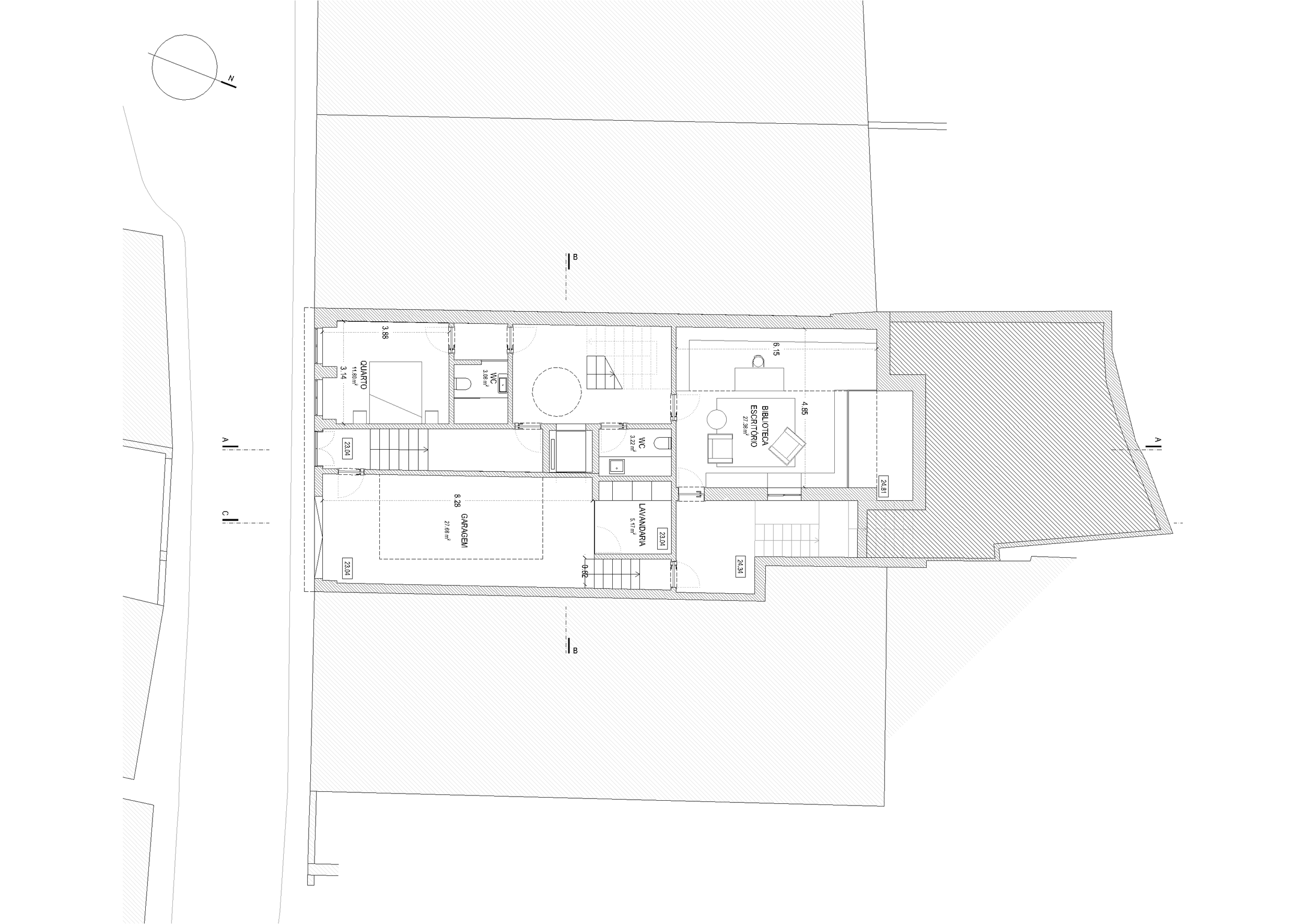
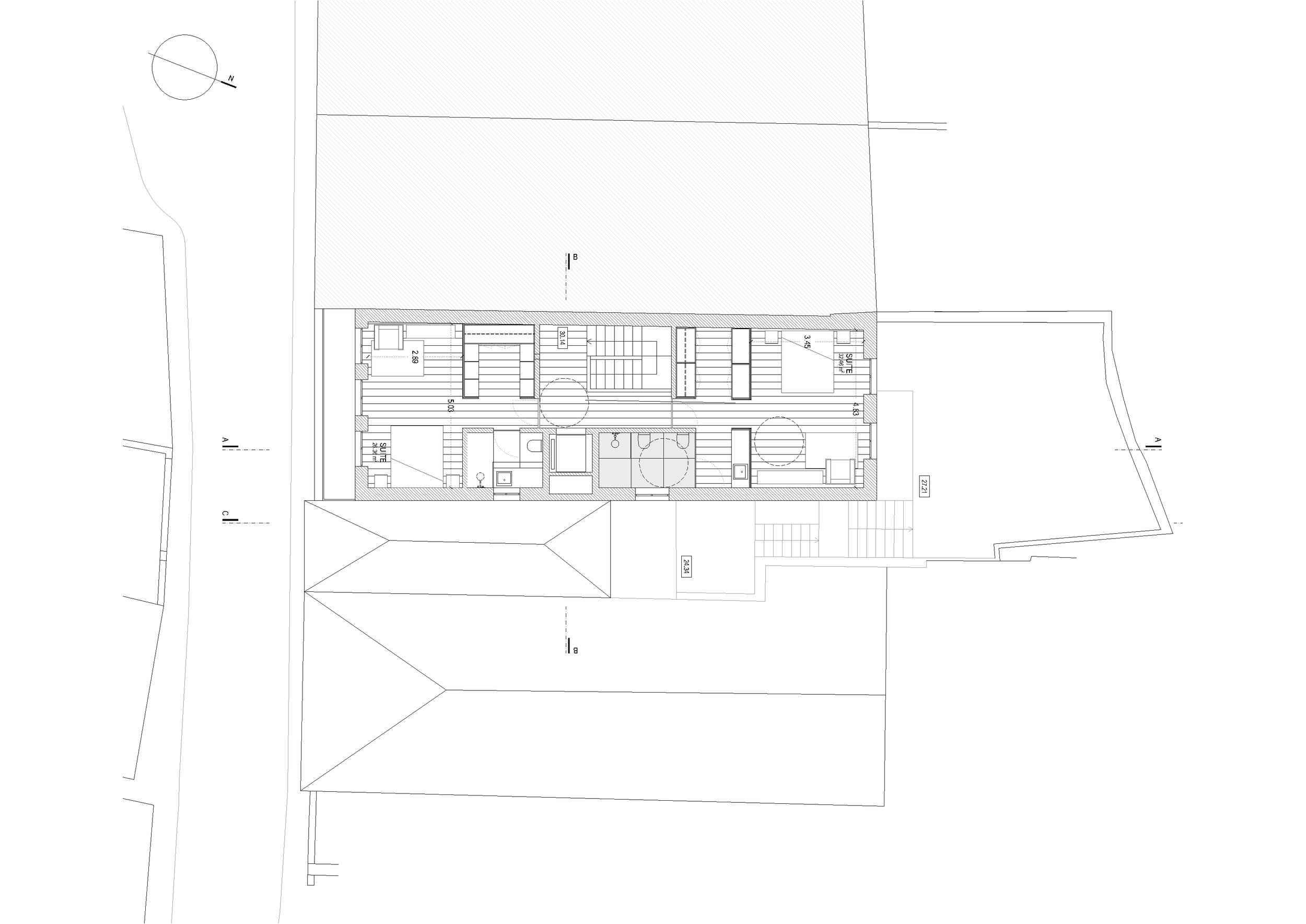
O projeto, materializa-se na propõe a alteração e ampliação do edifício existente, para um edfifício de habitação unifamiliar, promovendo a sua reconfiguração interior através da demolição dos compartimentos atuais e da reorganização do programa, adequando-o às vivências e necessidades contemporâneas.
A intervenção contempla a ampliação do piso 2, em profundidade e em altura, permitindo colmatar a empena existente a poente e reforçar a integração volumétrica com os edifícios contíguos. A continuidade da cércea consolida a frente urbana e estabelece as bases para uma futura ampliação do edifício a nascente, potenciando a unificação dos quatro volumes.
O projeto prevê ainda a substituição do revestimento cerâmico do alçado, contribuindo para a requalificação da imagem do conjunto e para uma leitura mais coerente e atual da frente edificada.
Ano
2021
Localização
Rua Alto de Vila, Porto
Colaboração
Patrícia Fernandes

