Casa Baião II
A Casa Baião II resulta da reconstrução e ampliação de um antigo edifício agrícola, convertido em habitação unifamiliar. A intervenção preserva a memória da construção original, mantendo a materialidade da pedra de granito e a marcação das duas águas no alçado, elementos que definem a sua identidade.
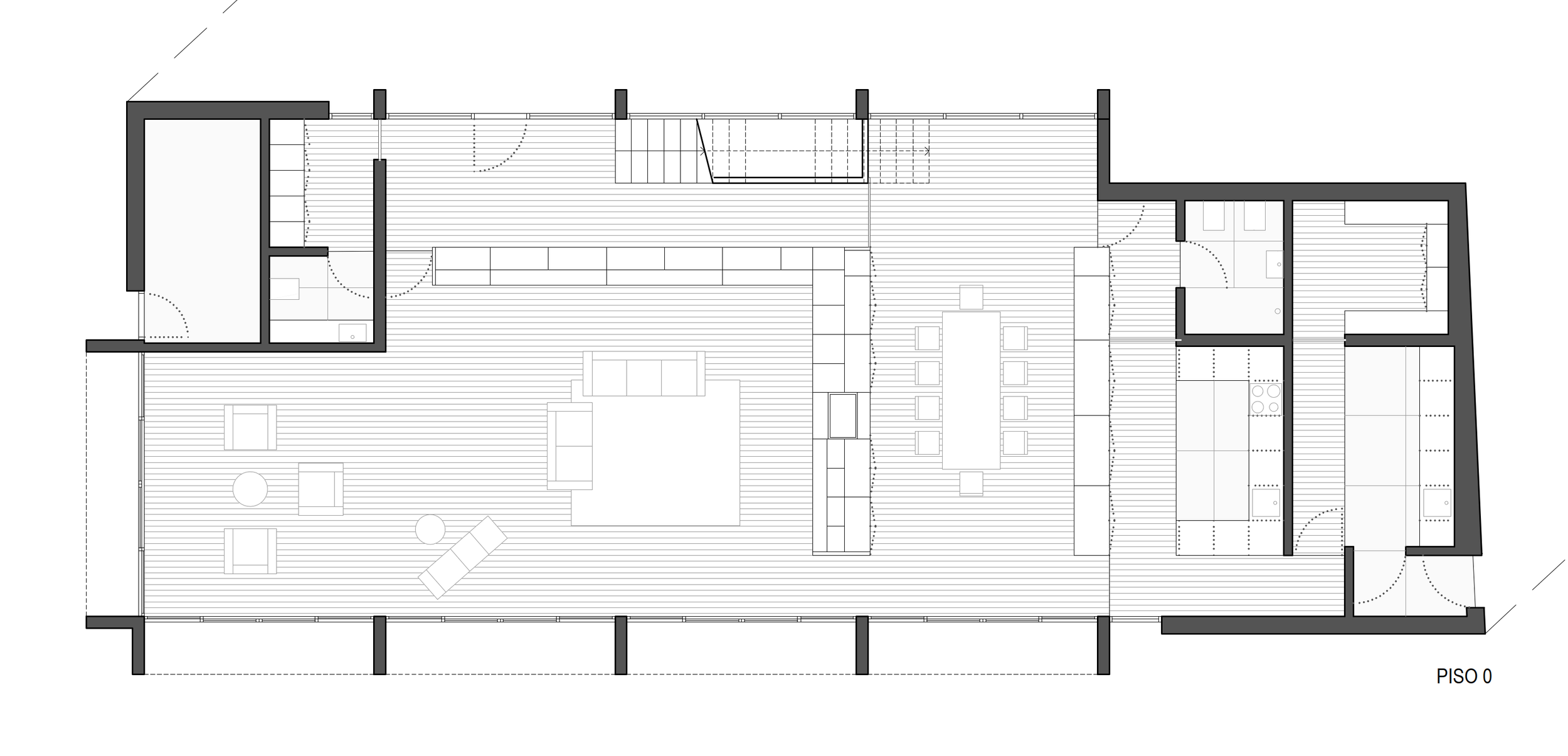
Implantada em estreita relação com a morfologia do terreno, a casa desenvolve-se em três níveis, acompanhando as cotas naturais e garantindo uma integração orgânica na paisagem. A organização espacial tira partido dos desníveis existentes, estabelecendo uma ligação direta entre interior e exterior.
A proposta conjuga permanência e contemporaneidade, reinterpretando a linguagem vernacular através de uma intervenção clara e contida, que valoriza o lugar e a pré-existência.
Ano
2018
Localização
Baião

