Casa de Cerveira
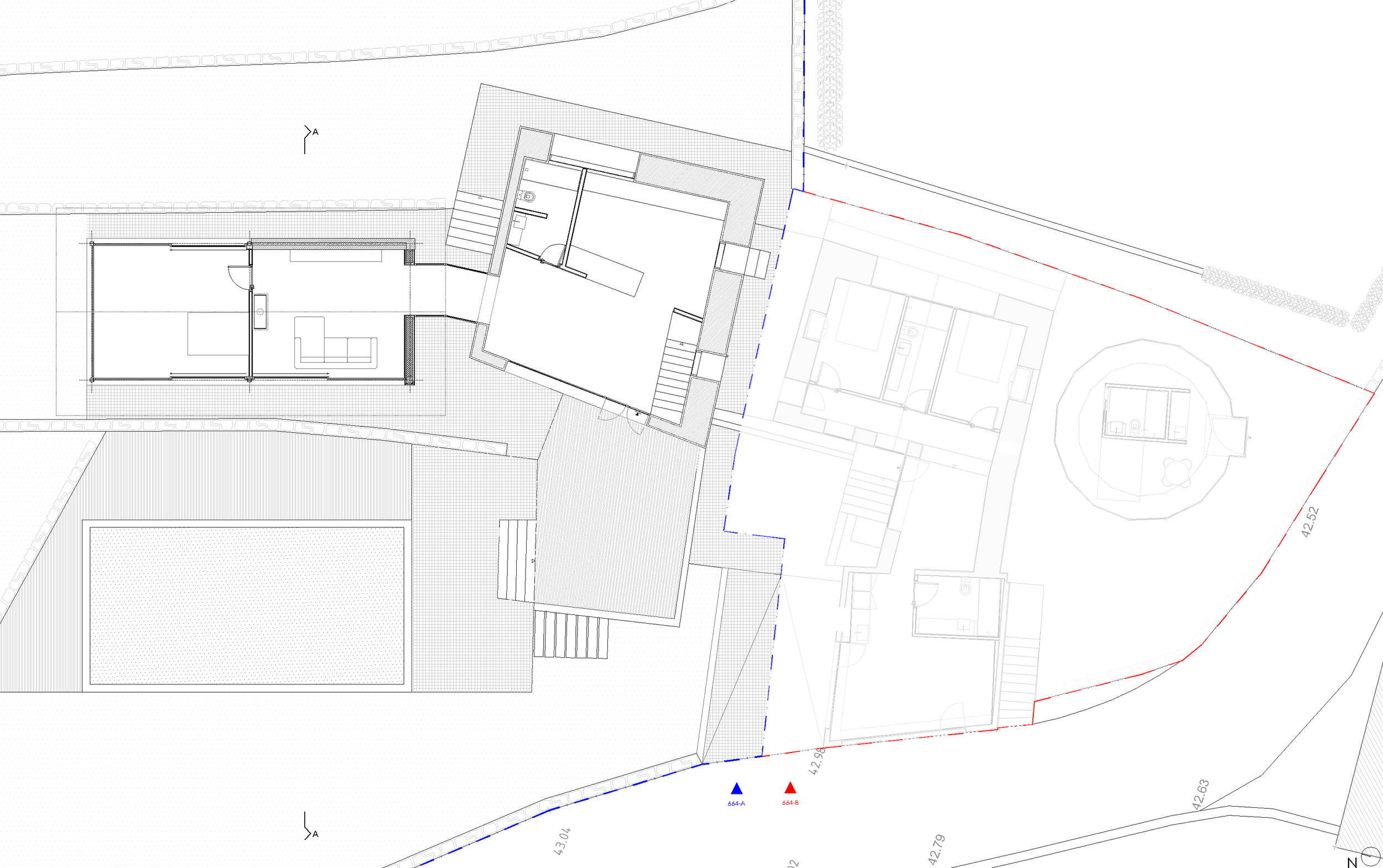
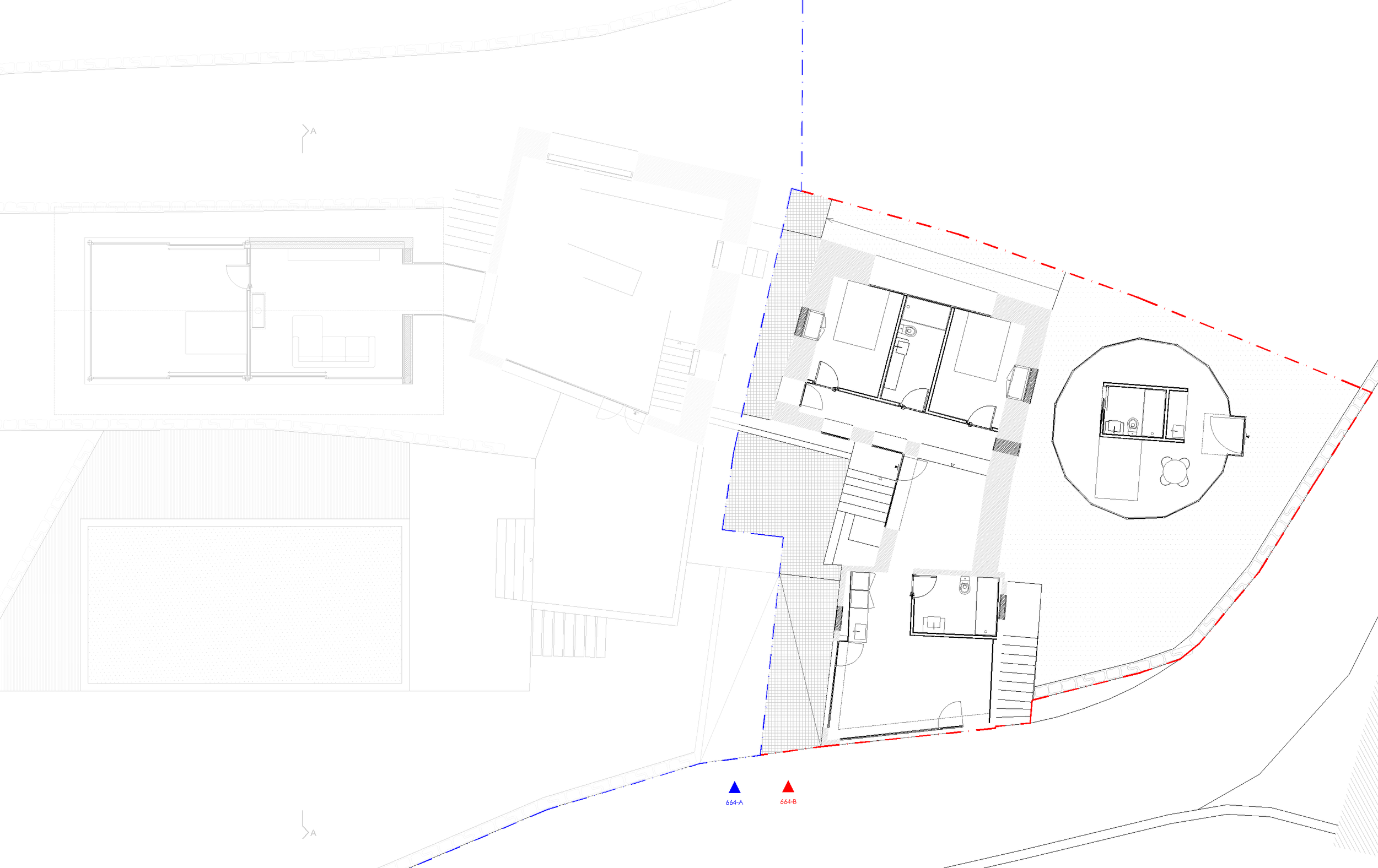
A proposta incide sobre a alteração e ampliação de um edifício existente, promovendo a reorganização dos espaços interiores e a reformulação dos alçados, através da adição de um novo volume térreo articulado com a construção original. Mantém-se a configuração atual, com um piso acima e outro abaixo da cota de soleira.
Implantado num terreno de topografia acidentada, marcado por socalcos ajardinados e por uma piscina, o novo volume desenvolve-se paralelo a este plano de água, estabelecendo uma relação direta ecom espaço exterior. O seu desenho remata e enquadra o jardim, reforçando a definição do conjunto edificado.
A intervenção privilegia a relação entre interior e exterior, com fachadas maioritariamente envidraçadas a norte e poente. A sul, o volume assume caráter mais resguardado, com revestimento em madeira, enquanto a nascente se integra através do uso de pedra de granito, em continuidade com os muros existentes. A ligação ao edifício pré-existente é assegurada por uma manga envidraçada, elemento de transição que reforça a unidade e a coerência da proposta.
Ano
2025 -
Localização
Vila Nova de Cerveira
Co-autoria
João Martins

